ELENA – 202
Kétszintes pajtaházunk rendkívüli népszerűségnek örvend, modern egyedi megjelenése, korcolt lemez borítása kiemeli a környezetéből. Hat hálószobája biztosítja, hogy a házban mindennek és mindenkinek legyen elég hely. Alakíthatósága szinte határtalan.
Helyiséglista
Név
Méret
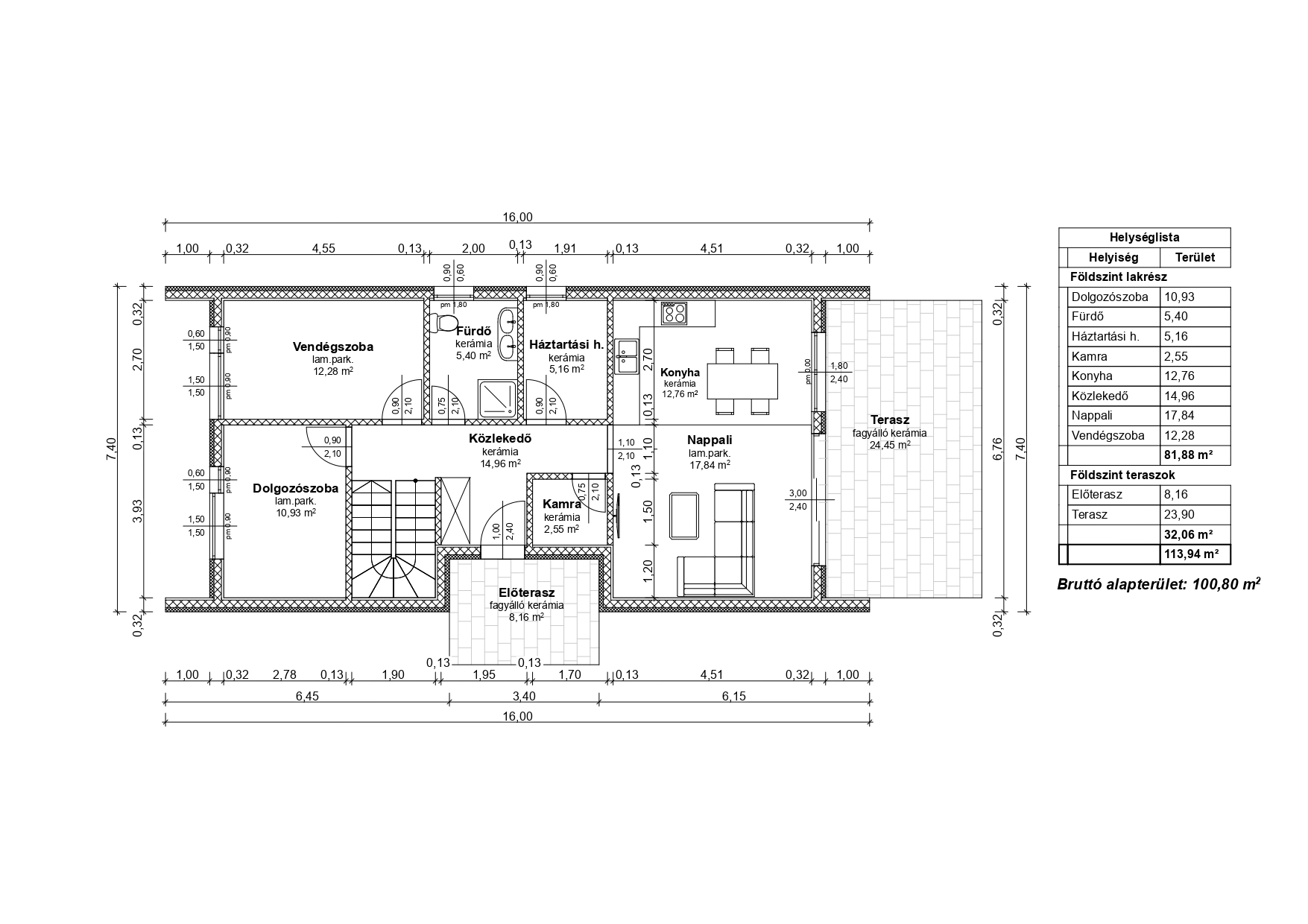
FSZ - dolgozószoba
10.93 m²
FSZ - fürdő
5.40 m²
FSZ - háztartási helyiség
5.16 m²
FSZ - kamra
2.55 m²
FSZ - konyha
12.76 m²
FSZ - közlekedő
14.96 m²
FSZ - nappali
17.84 m²
FSZ - vendégszoba
12.28 m²
FSZ - előterasz
8.16 m²
FSZ - terasz
23.90 m²
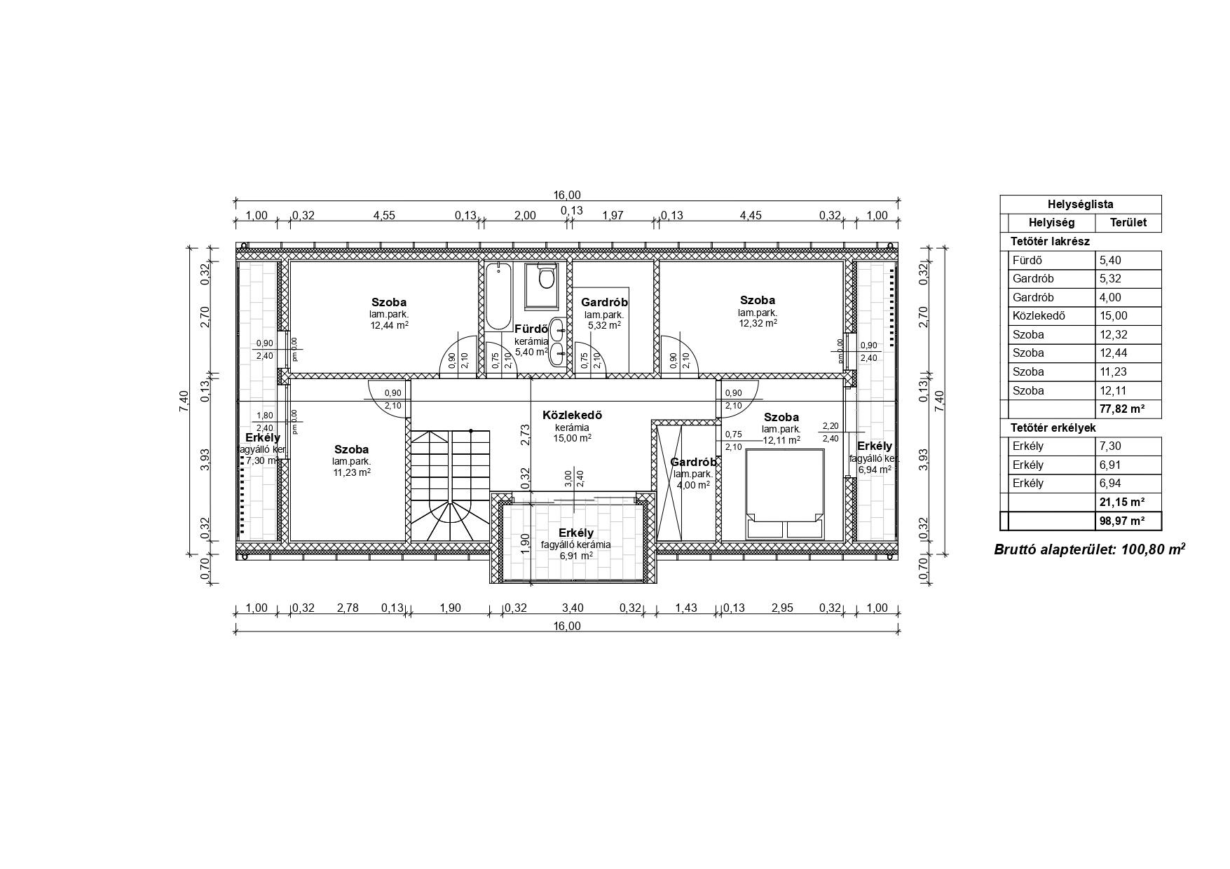
EM - fürdő
5.40 m²
EM - gardrób
5.32 m²
EM - gardrób
4.00 m²
EM - közlekedő
15.00 m²
EM - szoba
12.32 m²
EM - szoba
12.44 m²
EM - szoba
11.23 m²
EM - szoba
12.11 m²
EM - erkély
7.30 m²
EM - erkély
6.91 m²
EM - erkély
7.94 m²
Nettó terület:
213.91 m²
A ház paraméterei:
Érdekli ez a típusterv?
Kötelezettség nélkül keressen meg minket az alábbi űrlap kitöltésével! Kollégáink 1 napon belül visszahivják, hogy átbeszéljük a részleteket!
Fedezd fel a tökéletes otthont számodra
Böngéssz gondosan összeállított házkínálatunkban, ahol minden terv egy-egy életstílust képvisel. Rugalmas terveink lehetővé teszik, hogy a kiválasztott alapot, akár teljesen a saját igényeidre szabd. Szakértő csapatunk készen áll, hogy segítsen az ideális otthonod megvalósításában – csak válassz, és mi gondoskodunk a többiről!





