ALICE – 126
Az egyik kedvenc mintatervünk. Könnyed, modern, tekintetvonzó külső megjelenése otthonos belső teret takar, sok tárolási lehetőséggel és három különböző méretű hálószobával (szabadonálló beépítés esetén könnyen kialakítható egy 4. hálószoba is).
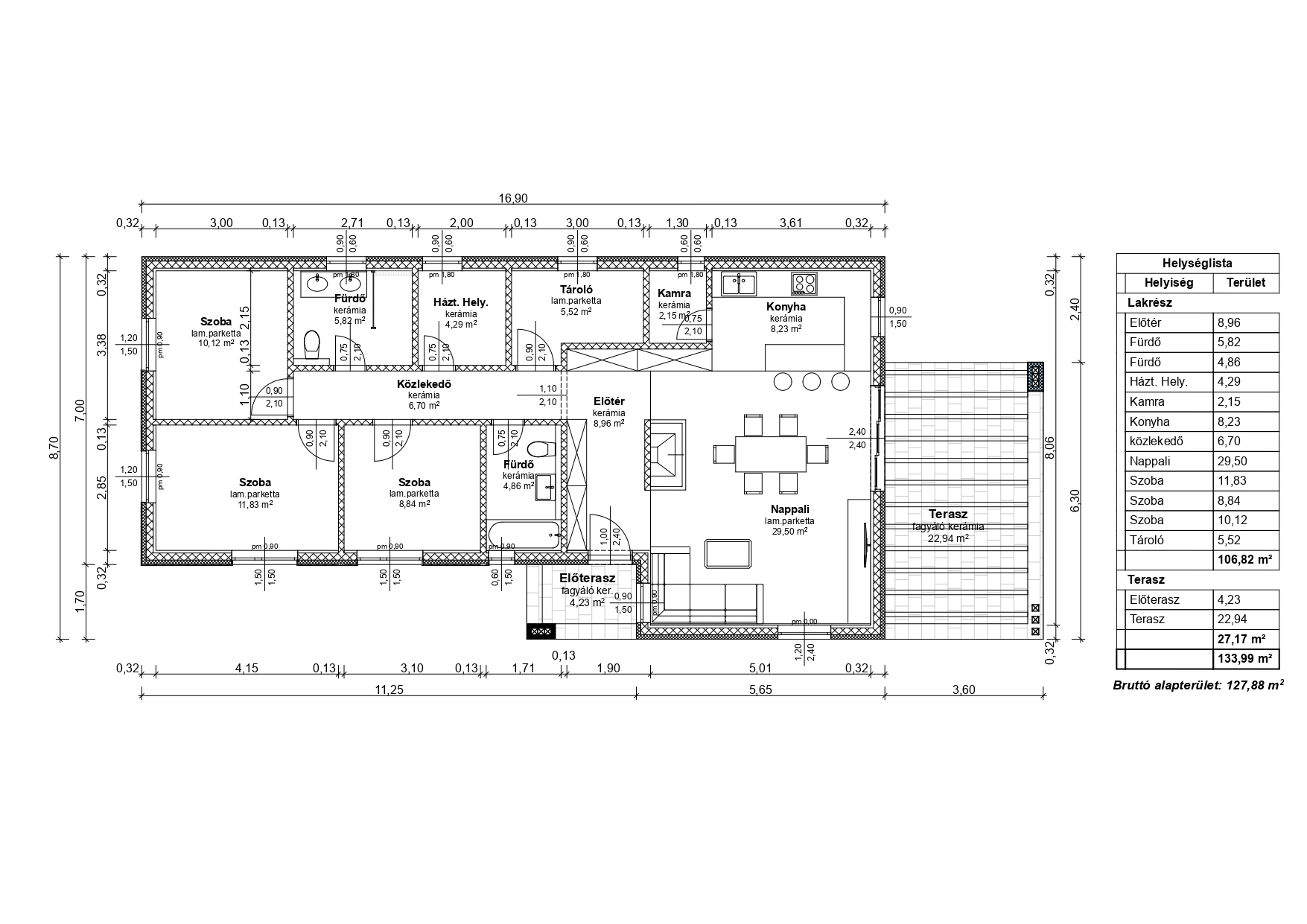
Helyiséglista
Név
Méret
Előtér
8.96 m²
Fürdő
5.52 m²
Fürdő
4.86 m²
Háztartási helyiség
4.29 m²
Kamra
2.15 m²
Konyha
8.23 m²
Közlekedő
6.70 m²
Nappali
29.50 m²
Szoba
11.83 m²
Szoba
8.84 m²
Szoba
10.12 m²
Tároló
5.52 m²
Előterasz
4.23 m²
Terasz
22.94 m²
Nettó terület:
133.69 m²
A ház paraméterei:
Érdekli ez a típusterv?
Kötelezettség nélkül keressen meg minket az alábbi űrlap kitöltésével! Kollégáink 1 napon belül visszahivják, hogy átbeszéljük a részleteket!
Fedezd fel a tökéletes otthont számodra
Böngéssz gondosan összeállított házkínálatunkban, ahol minden terv egy-egy életstílust képvisel. Rugalmas terveink lehetővé teszik, hogy a kiválasztott alapot, akár teljesen a saját igényeidre szabd. Szakértő csapatunk készen áll, hogy segítsen az ideális otthonod megvalósításában – csak válassz, és mi gondoskodunk a többiről!




