LENA – 139
Ez a gépkocsi tárolóval is rendelkező, 3 hálószobás ház, négytagú családok álomotthona. A szeletelt téglaburkolat és a natúr cserépfedés a 25 fokos kontyolt tetővel és a bejárat melletti oszloppal, hagyományos alapokon nyugvó, mégis friss, kertvárosias jelleget kölcsönös az épületnek.
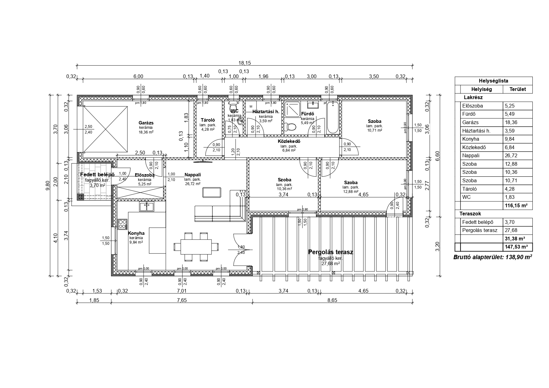
Helyiséglista
Név
Méret
Előszoba
5.25 m²
Fürdő
5.49 m²
Garázs
18.36 m²
Háztartási helyiség
3.59 m²
Konyha
9.84 m²
Közlekedő
6.84 m²
Nappali
26.72 m²
Szoba
12.88 m²
Szoba
10.36 m²
Szoba
10.71 m²
Tároló
4.28 m²
WC
1.83 m²
Fedett belépő
3.70 m²
Pergolás terasz
27.68 m²
Nettó terület:
147.53 m²
A ház paraméterei:
Érdekli ez a típusterv?
Kötelezettség nélkül keressen meg minket az alábbi űrlap kitöltésével! Kollégáink 1 napon belül visszahivják, hogy átbeszéljük a részleteket!
Fedezd fel a tökéletes otthont számodra
Böngéssz gondosan összeállított házkínálatunkban, ahol minden terv egy-egy életstílust képvisel. Rugalmas terveink lehetővé teszik, hogy a kiválasztott alapot, akár teljesen a saját igényeidre szabd. Szakértő csapatunk készen áll, hogy segítsen az ideális otthonod megvalósításában – csak válassz, és mi gondoskodunk a többiről!




